ホーム > 子育て・教育 > 社会教育・生涯学習 > 公民館・交流センター > 公民館・交流センター情報 > 中部公民館 > 中部公民館施設概要
更新日:2026年3月1日
ここから本文です。


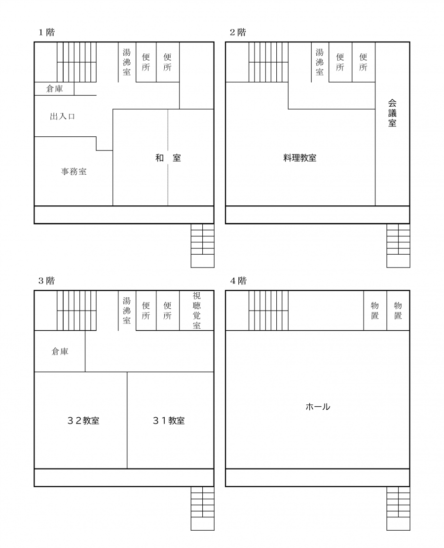
昭和50年建築鉄筋コンクリート造4階建て(エレベーターはありません。)
車でお越しの方は市役所の緑町立体駐車場をご利用ください。
午前8時30分から午後5時15分まで
土曜日、日曜日、祝休日は職員不在、年末年始(12月29日から1月3日まで)は休館となります。
年末年始(12月29日から1月3日まで)を除きます。
鍵の授受については中部公民館職員までお問い合わせください。
目的外使用の場合、使用料金がかかります。詳細は長野市立公民館(家庭・地域学びの課のページへリンク)でご確認ください。

面積78.75平方メートル(41畳)
収容人数40人(いすの場合は30人)
備品等長机16、和机19、いす40、茶道具一式、ホワイトボード、エアコン、ストーブ、姿見(移動式)

面積102.37平方メートル
収容人数20人
備品等調理台6、いす23、調理器具一式、食器一式、黒板、ストーブ
その他洗剤、スポンジ、布巾、台拭きはご用意ください。

面積60.00平方メートル
収容人数16人
備品等長机6、幅広机2、いす16、ホワイトボード、エアコン、ストーブ

面積66.15平方メートル
収容人数30人
備品等長机15、教師机1、いす30、黒板、エアコン、ストーブ

面積66.15平方メートル
収容人数30人
備品等長机15、教師机1、いす30、黒板、エアコン、ストーブ

面積170.10平方メートル
収容人数60人
備品等長机31、いす92、黒板、卓球台2、ござ、ピアノ、ストーブ、スポットクーラー(冷風機)2
その他冷房(エアコン)はありません。夏の利用時は熱中症にご注意ください。

1階から3階まで、貸出し用図書を設置してあります。
1人1回5冊まで、2週間貸出し可能です。
事務室までお声かけください。



平成30年建築鉄骨造平屋建て、約400平方メートルのアリーナ(バレーボール一面)
備品等大型扇風機4、スポットクーラー(冷風機)2
駐車場7台(駐車場以外の場所への駐車はしないでください。)
職員は常駐しておりません。
年末年始(12月29日から1月3日まで)を除きます。
ご利用方法は中部公民館分室後町ホールをご確認ください。
目的外使用の場合、使用料金がかかります。詳細は長野市立公民館(家庭・地域学びの課のページへリンク)でご確認ください。



昭和52年建築木造2階建て(エレベーターはありません。)
駐車場3台(軽自動車)
職員は常駐しておりません。
年末年始(12月29日から1月3日まで)を除きます。
ご利用にあたっては第五地区分館をご覧ください。
鍵の授受については中部公民館職員までお問い合わせください。
目的外使用の場合、使用料金がかかります。詳細は長野市立公民館(家庭・地域学びの課のページへリンク)でご確認ください。

面積29.00平方メートル(15畳)
収容人数14人
備品等和机8エアコン

面積29.00平方メートル
収容人数18人
備品等長机6、いす10、黒板、エアコン

面積29.00平方メートル
収容人数14人
備品等調理台3、食器一式、黒板
その他調理器具、はし等、洗剤、スポンジ、布巾、台拭きはご用意ください。

面積29.00平方メートル(15畳)
収容人数14人
備品等エアコン、和机8

面積26.00平方メートル(14畳)
収容人数13人
備品等電気ストーブ2

面積58.00平方メートル
収容人数29人
備品等長机10、いす25、黒板、エアコン

お問い合わせ先
同じカテゴリのページを見る
こちらのページも読まれています